I 2025 gjennomgikk Stjørdal bibliotek en lettere ominnredning av barne- og ungdomsavdelingen, med fokus på fleksible løsninger, bedre romflyt og funksjonalitet. Prosjektet bygde videre på erfaringene fra Svanhilds salong, som vi året før hadde planløst og innredet til et fleksibelt kafé- og arrangementsområde.
Stjørdal bibliotek ligger i Kimen kulturhus, som åpnet i 2015. Biblioteket er integrert i den store foajeen og går over to etasjer i bygget. I første etasje finner man barneavdeling, ungdomsområde, sittegrupper og områder for arrangementer. I andre etasje ligger voksenavdelingen, studieplasser og stilleområder for lesing og arbeid, og her finner man også Svanhilds salong.

Bakgrunn:
Bakgrunnen for prosjektet var at både barne- og ungdomsavdelingen hadde høye og upraktiske reoler, og at områdene fremstod som trange og lite fleksible. Det var derfor behov for en ny romlig organisering som kunne støtte både opphold, formidling og fleksibel bruk.

Ny planløsning og romlig organisering
Vår interiørarkitekt utarbeidet ny planløsning for barne- og ungdomsområdet. Målet var å åpne opp rommet og forbedre sirkulasjon. Samtidig ble det skapt tydeligere soner og fleksibiliteten økte.

Ungdomsområde – ny lounge
Som del av ominnredningen ble det etablert et nytt loungeområde for ungdom. Området ble utformet med myke møbler, teppe og uformell møblering.

Det ble også innkjøpt lavere reoler på hjul, som erstattet tidligere høye og mindre fleksible reoler. Reolene er av samme type som tidligere ble brukt i Svanhilds salong, noe som gir mulighet for ommøblering og bedre utnyttelse av inventar på tvers av soner.

Barneavdeling – forbedret funksjonalitet
I barneavdelingen ble det gjennomført flere tiltak. Ommøblering av billedbokkasser samt justering av eksisterende billedbokkasser for bedre funksjonalitet. I tillegg ble det kjøp inn nytt bord og stoler for barn.
Tiltakene forbedret ikke bare tilgjengeligheten, men styrket formidlingsmulighetene og økte fleksibiliteten i området. Lavere møbler og bedre sirkulasjon gjør også området mer oversiktlig for både barn og voksne.

Amfitrappen i biblioteket
Amfitrappen er et sentralt arkitektonisk element i biblioteket, og fungerer både som kommunikasjon mellom etasjene og som en fleksibel møte- og arrangementsarena. Trappen er utformet som et åpent sitteamfi med brede trinn som inviterer til opphold, lesing og uformelle møter i hverdagen. De dype trinnene har vi utstyrt med løse sitteputer i ulike bredder og farger for ekstra god sittekomfort.
Amfitrappen spiller også en viktig rolle i fleksibiliteten rundt Svanhilds salong. Ved arrangementer kan flyttbare reoler brukes til å skjerme salongen fra aktivitet i amfitrappen, skape mer intime rom og tilpasse området til ulike typer arrangementer. Dette samspillet mellom amfitrappen og Svanhilds salong bidrar til at biblioteket kan håndtere flere aktiviteter samtidig, uten at de forstyrrer hverandre.

Svanhilds salong
Svanhilds salong er et skjermet og rolig område i Stjørdal bibliotek, som i 2024 ble utviklet som et sted for lesing, opphold og uformelle møter. Rommet er oppkalt etter Svanhild Salberg, som var politiker og jobbet ved Stjørdal folkebibliotek i over 20 år. Hun ga også ut en diktsamling, og ett av diktene hennes henger på en plate i salongen, som et levende minne om hennes engasjement.

Salongen er innredet med myke sittegrupper og lavere reoler som skaper en hjemlig og fleksibel atmosfære. Reolene kan flyttes og brukes på tvers av bibliotekets soner, noe som gir mulighet for enkel ommøblering og tilpasning til ulike aktiviteter.

Svanhilds salong viser hvordan fleksibel møblering og skjermede soner kan skape et avslappende oppholdsrom som fungerer både til daglig bruk og ved arrangementer. Erfaringene fra salongen har også inspirert løsninger i andre deler av biblioteket, som barne- og ungdomsavdelingen, og bidrar til en mer helhetlig og fleksibel romstruktur.

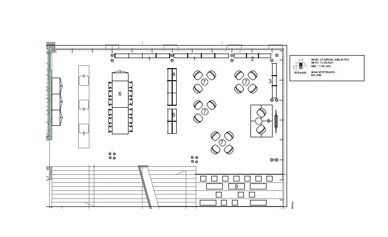
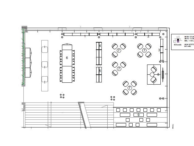
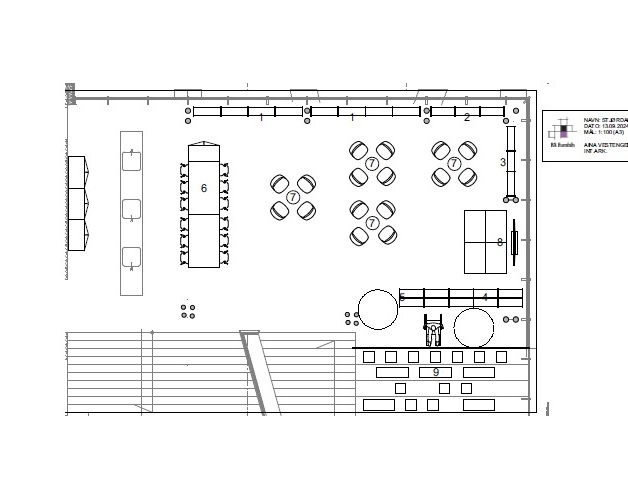
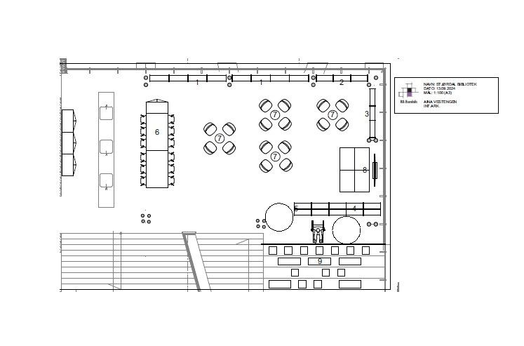
Ettersom de dobbelsidige reolene er flyttbare, kan man enkelt omskape rommet alt etter aktivitet. Her viser vi tre ulike planløsninger.
Stjørdal bibliotek
1. Normalt oppsett: Reolene plasseres ute på gulvet, kafé-oppsett foran scenen, arbeidsbord bakerst brukes til aktiviteter som Strikk og lytt, norsktrening, digihjelp og slektsforskning.
2. Arrangement i amfiet: Reolene avskjermer salongen, og det blir plass til rullestolbrukere øverst på amfiet.
3. Arrangement i salongen: Reolene avskjermer mot sitteamfi og etasjen under for et mer intimt preg.


Det store arbeidsbordet bakerst i lokalet brukes til mye forskjellig, f.eks. Strikk og lytt, norsktrening, digihjelp, slektsforskning, symaskin og mye mer. Vangebordene kan leveres både i standard mål og utførelse samt i spesialtilpassede varianter.

FAKTA
Ferdigstilt: 2024 (Svanhilds salong) og 2025 (barne- og ungdomsavdelingen)
Reoler: Lingo med sortlakkerte gavler i mdf og hvitlakkerte stålhyller
Bildebokkasser/podier: Maria i mørk grå, sett med 3 stk. i ulike høyder
Møbler: Puffer Drum, myke lenestoler Grand Prix, stabelbare stoler City, lenerstoler Norma, hvite vangebord, spilebord i eik og sitteputer med spesialmål
Øvrig inventar: Scene, gulvtepper fra Desso/Tarkett
Prosjektansvarlig hos BS Eurobib: Aina Vestengen
Foto: Aina Vestengen der ikke annet er angitt under bildet
Utvalgte produkter:

Rindal folkebibliotek
Med ny planløsning, fleksible hyller og en populær lesehytte har biblioteket fått et tydelig løft.
Les mer











